刀型闸阀
阀门首页 > 产品展示 > 闸阀 > 刀型闸阀 > 






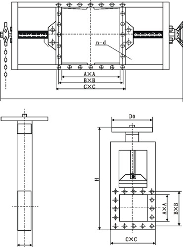
1、具有全通径的通道,等同于平滑的管道,流通能力大,流阻小;具有双重上下游密封,无需润滑的密封部位,密封性好,可靠性高;具有较少的零 部件;设计新颖,既满足了管线的工艺性要求,又满足了用户的操作和维护简便性的要求,能保证阀门长期可靠地运行。
2、可提升的闸板密封面,可刮除密封面的的粘着物,自动清除杂物。
3、整体的不锈钢材质,可防止腐蚀破坏。
4、短结构长度,可节省原料、安装空间,也有效支持管道强度。
5、上密封填料函设计,使上密封安全有效,经久耐用。
6、三角形的支架节省原材料,保证需要的力学性能。
7、阀体加强筋设计提高阀体强度。
8、不锈钢阀杆经久耐用,双头螺使用启闭更为迅。
|
类别 |
A×A |
B×B |
C×C |
H |
L |
n-d |
重量 |
|
单向 |
200×200 |
256×256 |
296×296 |
820 |
100 |
8-Φ12 |
62 |
|
250×250 |
306×306 |
346×346 |
930 |
100 |
8-Φ14 |
70.5 |
|
|
300×300 |
356×356 |
396×396 |
1050 |
100 |
8-Φ14 |
81 |
|
|
400×400 |
456×456 |
496×496 |
140 |
100 |
12-Φ14 |
114 |
|
|
450×450 |
510×510 |
556×556 |
1450 |
120 |
12-Φ18 |
130 |
|
|
500×500 |
560×560 |
606×606 |
1610 |
120 |
16-Φ18 |
147 |
|
|
双向 |
600×600 |
660×660 |
706×706 |
1830 |
120 |
16-Φ18 |
169 |
|
700×700 |
770×770 |
820×820 |
2130 |
140 |
20-Φ18 |
236 |
|
|
800×800 |
870×870 |
920×920 |
2440 |
140 |
20-Φ18 |
303 |
|
|
900×900 |
974×974 |
1030×1030 |
2660 |
160 |
27-Φ23 |
424 |
|
|
1000×1000 |
10741074 |
1130×1130 |
2870 |
160 |
24-Φ23 |
636 |
|
|
说明 |
LMD-单向 |
I-手轮 |
距地面小于1.7米用手轮,大于1.7米用链轮 |
||||

上一篇:电动刀闸阀PZ973H-10 DN700矿用隔爆型 / 下一篇:DZ973X-10C-DN450智能一体化型电动暗杆式刀闸阀