蝶阀知识
阀门首页 > 阀门知识 > 蝶阀知识 > 电动调节蝶阀主要技术参数
|
公称通径 |
50 |
65 |
80 |
100 |
125 |
150 |
200 |
250 |
300 |
350 |
400 |
450 |
500 |
|
|
流量系数 (CV) |
95 |
175 |
270 |
375 |
740 |
1400 |
2100 |
3250 |
4680 |
6200 |
8100 |
11000 |
15800 |
|
|
转角(α°) |
90° |
|||||||||||||
|
工作电压 |
220VAC、380VAC |
|||||||||||||
|
工作温度范围℃ |
-40~250 |
|||||||||||||
|
输入信号 |
4~20mADC、220VAC、24VDC |
|||||||||||||
|
公称压力(MPa) |
1.6、4.0、6.4 |
|||||||||||||
|
连接形式及标准 |
对夹式、法兰式 |
|||||||||||||
|
阀体材料 |
ZG25、304、316、316L |
|||||||||||||
|
阀芯材料 |
304、316、316L |
|||||||||||||
|
阀座材料 |
304、316、F4 |
|||||||||||||
|
流量特性 |
近似等百分比 |
|||||||||||||
|
泄漏等级 |
V、VI |
|||||||||||||
电动调节蝶阀执行机构
3610R系列电动执行器,是以AC220单相交流电源作为驱动电源,接受来自DCS、PLC系统或调节仪表操作器的DC4~20mA、DC0~10mA或DC1~5V控制信号的全电子式执行机构,该执行机构具备动作切换功能以及开度信号功能和手动等功能。大口径蝶阀一般采用380VAC电动执行器,国内品牌如上海澳托克,扬州电力,天津二通等;国外品牌有英国罗托克、法国伯纳德、德国西博思(西门子)等。
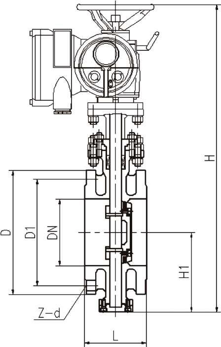
电动调节蝶阀外形尺寸及重量

单位:mm
|
公称通径 |
结构长度L |
外形尺寸 |
连接尺寸PN1.6MPa |
参考重量 |
||||
|
DN |
法兰式 |
对夹式 |
H |
H |
D |
D1 |
Z-d |
(kg) |
|
50 |
108 |
43 |
112 |
530 |
165 |
125 |
4-18 |
19 |
|
65 |
112 |
46 |
115 |
530 |
185 |
145 |
4-18 |
22 |
|
80 |
114 |
49 |
120 |
565 |
200 |
160 |
8-18 |
25 |
|
100 |
127 |
56 |
138 |
600 |
220 |
180 |
8-18 |
28 |
|
125 |
140 |
64 |
164 |
640 |
250 |
210 |
8-18 |
43 |
|
150 |
140 |
70 |
185 |
705 |
285 |
240 |
8-22 |
50 |
|
200 |
152 |
71 |
200 |
775 |
340 |
295 |
12-22 |
64 |
|
250 |
165 |
76 |
243 |
945 |
405 |
355 |
12-26 |
99 |
|
300 |
178 |
83 |
250 |
1070 |
160 |
410 |
12-26 |
130 |
|
350 |
190 |
92 |
280 |
1140 |
520 |
470 |
16-26 |
188 |
|
400 |
216 |
102 |
305 |
1210 |
580 |
525 |
16-30 |
270 |
|
450 |
222 |
114 |
350 |
1335 |
640 |
585 |
20-30 |
350 |
|
500 |
229 |
127 |
380 |
1415 |
715 |
650 |
20-33 |
375 |
|
600 |
267 |
154 |
445 |
1605 |
840 |
770 |
20-36 |
560 |
|
700 |
292 |
165 |
480 |
1844 |
910 |
840 |
24-36 |
610 |
|
800 |
318 |
190 |
530 |
2040 |
1025 |
950 |
24-39 |
880 |
上一篇:电动蝶阀的优缺点及安装维护要点有哪些 / 下一篇:电动蝶阀到底应该怎么判断好坏